Concrétisez votre projet de vie : maison personnalisée sur une parcelle privilégiée au Montat sur un joli terrain de 2235m2
Ce projet représente une opportunité rare de s'installer sur l'un des secteurs les plus prisés de la périphérie de Cahors.
Le terrain, véritable atout majeur de cette offre, se distingue par sa topographie plate, ce qui facilite l'aménagement de vos espaces extérieurs et réduit considérablement les coûts de terrassement. Entièrement viabilisée, cette parcelle bénéficie d'une exposition optimale pour maximiser les apports solaires naturels. Situé dans une impasse ou un quartier résidentiel préservé du passage, il offre la tranquillité absolue pour votre famille tout en étant à proximité immédiate des écoles et des commerces de proximité du village.
Oubliez les plans standardisés. Avec Maisons Naturea, la personnalisation est au cœur de notre démarche. Vous avez la liberté totale de moduler l'espace selon vos besoins réels :
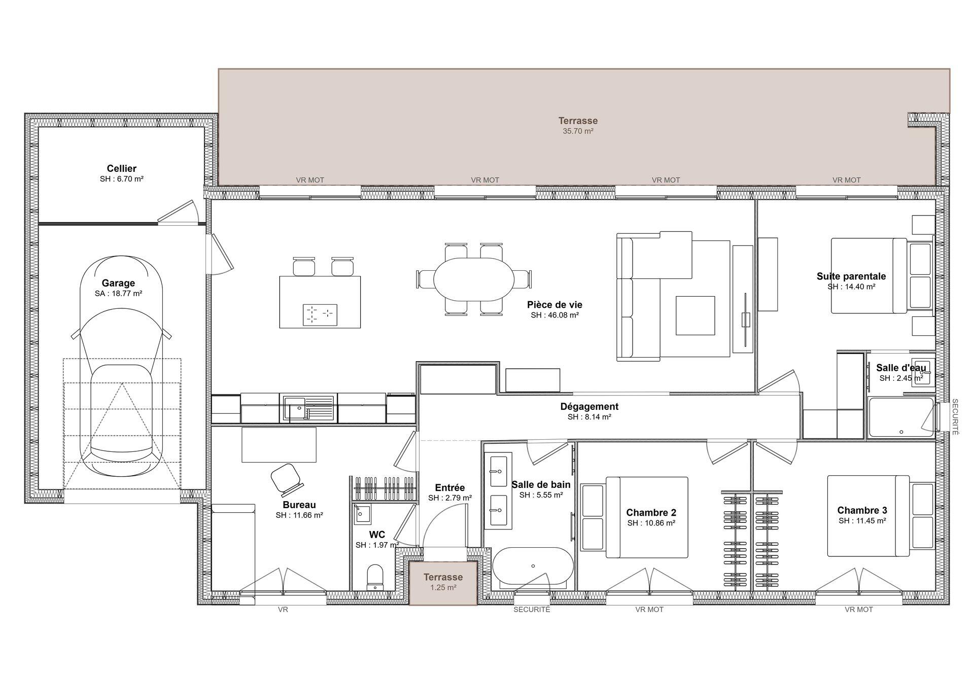
- Créez une suite parentale avec dressing et salle d'eau privative, prévoyez un bureau dédié au télétravail ou imaginez une cuisine avec îlot central ouverte sur un salon cathédrale.
- Grâce à la configuration du terrain, nous pouvons intégrer de larges baies coulissantes donnant sur une terrasse couverte, une cuisine d'été ou même un futur espace piscine.
- Choisissez vos finitions (carrelages grand format, menuiseries colorées, domotique intégrée) et votre mode de chauffage (pompe à chaleur, plancher chauffant) pour un confort thermique d'exception.
En plus d'un design unique, votre construction répondra aux normes RE2020, vous assurant une isolation ultra-performante et une valorisation durable de votre patrimoine immobilier.
Nous vous offrons un accompagnement technique et administratif complet, vous garantissant un prix ferme et définitif ainsi que des délais de livraison maîtrisés.
Venez rencontrer nos conseillers à l'agence de Cahors pour dessiner, ensemble, les plans de votre future villa au Montat.
Le terrain, véritable atout majeur de cette offre, se distingue par sa topographie plate, ce qui facilite l'aménagement de vos espaces extérieurs et réduit considérablement les coûts de terrassement. Entièrement viabilisée, cette parcelle bénéficie d'une exposition optimale pour maximiser les apports solaires naturels. Situé dans une impasse ou un quartier résidentiel préservé du passage, il offre la tranquillité absolue pour votre famille tout en étant à proximité immédiate des écoles et des commerces de proximité du village.
Oubliez les plans standardisés. Avec Maisons Naturea, la personnalisation est au cœur de notre démarche. Vous avez la liberté totale de moduler l'espace selon vos besoins réels :
- Créez une suite parentale avec dressing et salle d'eau privative, prévoyez un bureau dédié au télétravail ou imaginez une cuisine avec îlot central ouverte sur un salon cathédrale.
- Grâce à la configuration du terrain, nous pouvons intégrer de larges baies coulissantes donnant sur une terrasse couverte, une cuisine d'été ou même un futur espace piscine.
- Choisissez vos finitions (carrelages grand format, menuiseries colorées, domotique intégrée) et votre mode de chauffage (pompe à chaleur, plancher chauffant) pour un confort thermique d'exception.
En plus d'un design unique, votre construction répondra aux normes RE2020, vous assurant une isolation ultra-performante et une valorisation durable de votre patrimoine immobilier.
Nous vous offrons un accompagnement technique et administratif complet, vous garantissant un prix ferme et définitif ainsi que des délais de livraison maîtrisés.
Venez rencontrer nos conseillers à l'agence de Cahors pour dessiner, ensemble, les plans de votre future villa au Montat.