Projet de construction – Maison ossature bois 140 m2 – terrain 810 m2 Chusclan (30200)
Sur la commune recherchée de Chusclan, découvrez ce projet de construction sur un terrain de 810 m², dans un environnement calme et agréable.
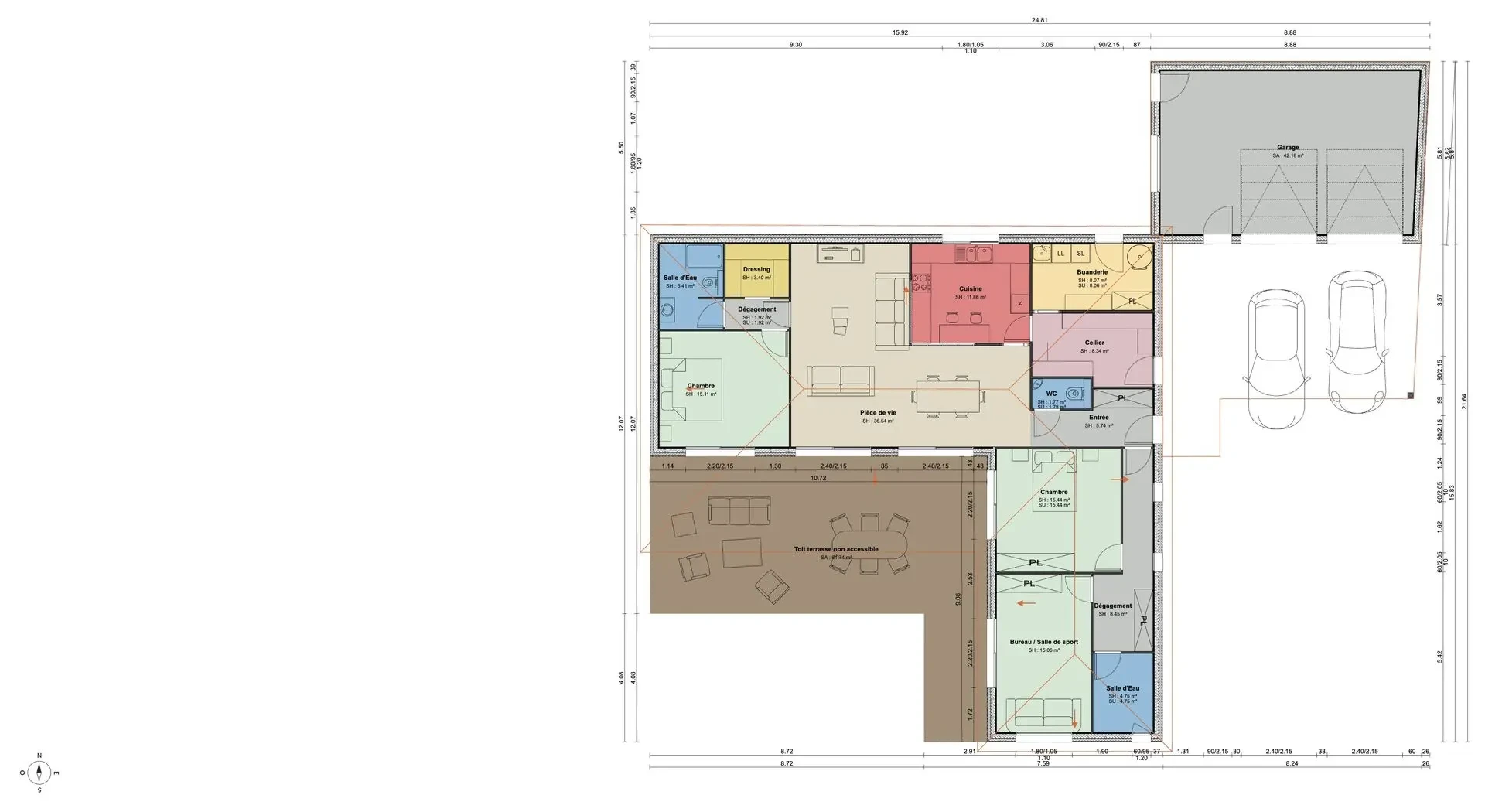
Nous vous proposons une maison individuelle moderne et fonctionnelle, pensée pour le confort au quotidien et la luminosité.
La maison se compose de :
3 chambres, dont une suite parentale
Un vaste salon / salle à manger baigné de lumière
Une cuisine indépendante
Un cellier et une buanderie
Une grande pièce de vie avec deux larges baies vitrées, ouvertes sur une terrasse de 60 m²
Un garage spacieux de 40 m², idéal pour véhicules, rangement ou atelier
Les vrais plus du projet
Maison à ossature bois : un mode constructif durable, précis et reconnu
Double isolation (intérieure et extérieure) : confort thermique été comme hiver, économies d’énergie réelles
Maison très performante, conforme aux dernières normes en vigueur
Délais de construction réduits par rapport à une construction traditionnelle, grâce au procédé ossature bois
Confort, qualité de l’air intérieur et performance énergétique au rendez-vous
Projet personnalisable selon vos envies et votre budget.
Accompagnement complet, de la conception à la remise des clés.
📞 Pour plus d’informations ou une étude gratuite de votre projet, contactez-nous.
Nous vous proposons une maison individuelle moderne et fonctionnelle, pensée pour le confort au quotidien et la luminosité.
La maison se compose de :
3 chambres, dont une suite parentale
Un vaste salon / salle à manger baigné de lumière
Une cuisine indépendante
Un cellier et une buanderie
Une grande pièce de vie avec deux larges baies vitrées, ouvertes sur une terrasse de 60 m²
Un garage spacieux de 40 m², idéal pour véhicules, rangement ou atelier
Les vrais plus du projet
Maison à ossature bois : un mode constructif durable, précis et reconnu
Double isolation (intérieure et extérieure) : confort thermique été comme hiver, économies d’énergie réelles
Maison très performante, conforme aux dernières normes en vigueur
Délais de construction réduits par rapport à une construction traditionnelle, grâce au procédé ossature bois
Confort, qualité de l’air intérieur et performance énergétique au rendez-vous
Projet personnalisable selon vos envies et votre budget.
Accompagnement complet, de la conception à la remise des clés.
📞 Pour plus d’informations ou une étude gratuite de votre projet, contactez-nous.