Projet de construction – Maison ossature bois 90 m² à Valliguières sur terrain de 703 m2
Sur la commune de Valliguières, nous vous proposons un projet de construction sur un terrain de 703 m², dans un environnement calme et agréable, idéal pour un projet de vie durable.
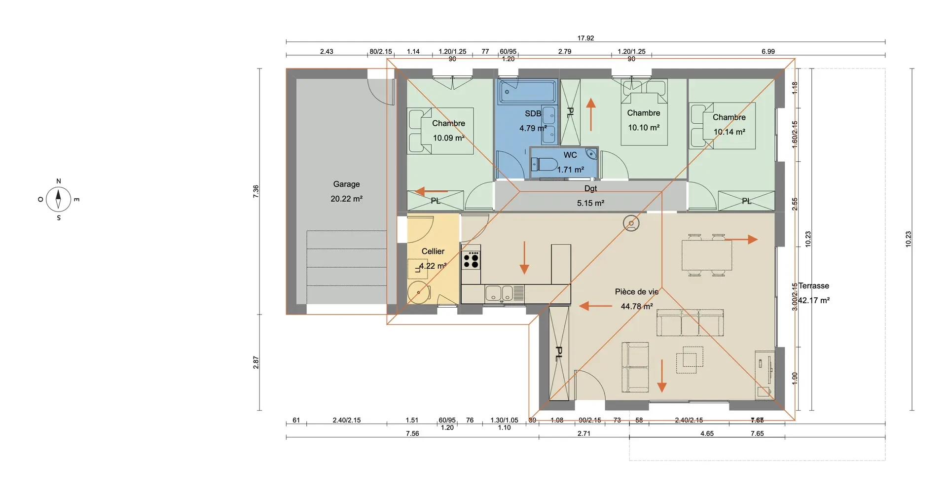
La maison développée offre 90 m² habitables, avec une conception moderne, fonctionnelle et surtout une construction à ossature bois, reconnue pour ses performances et son confort.
👉 Les atouts clés du projet :
Maison ossature bois avec double isolation intérieure et extérieure, garantissant :
un excellent confort thermique été comme hiver
des économies d’énergie durables
une sensation de bien-être intérieur incomparable
Construction plus rapide qu’une maison traditionnelle, grâce au mode constructif bois, avec une préfabrication en atelier qui sécurise les délais et la qualité d’exécution
Une maison pensée pour durer, saine et performante
L’agencement intérieur peut être entièrement personnalisé selon vos besoins : nombre de chambres, organisation des espaces, prestations, finitions… Nous concevons votre maison à votre image.
📍 Valliguières, village recherché pour son cadre de vie, sa proximité avec les axes principaux et son authenticité.
Pour en savoir plus sur ce projet ou étudier une version sur mesure, contactez-nous.
Nous vous accompagnons de la conception à la remise des clés, en toute sérénité.
La maison développée offre 90 m² habitables, avec une conception moderne, fonctionnelle et surtout une construction à ossature bois, reconnue pour ses performances et son confort.
👉 Les atouts clés du projet :
Maison ossature bois avec double isolation intérieure et extérieure, garantissant :
un excellent confort thermique été comme hiver
des économies d’énergie durables
une sensation de bien-être intérieur incomparable
Construction plus rapide qu’une maison traditionnelle, grâce au mode constructif bois, avec une préfabrication en atelier qui sécurise les délais et la qualité d’exécution
Une maison pensée pour durer, saine et performante
L’agencement intérieur peut être entièrement personnalisé selon vos besoins : nombre de chambres, organisation des espaces, prestations, finitions… Nous concevons votre maison à votre image.
📍 Valliguières, village recherché pour son cadre de vie, sa proximité avec les axes principaux et son authenticité.
Pour en savoir plus sur ce projet ou étudier une version sur mesure, contactez-nous.
Nous vous accompagnons de la conception à la remise des clés, en toute sérénité.