Projet de construction maison 88 m² sur terrain de 400 m² – Sabran (30200)
Sur la commune de Sabran (30200), dans un environnement calme et résidentiel, nous vous proposons ce projet de construction maison + terrain.
Le terrain, d’une surface de 400 m², est idéal pour un projet de maison confortable, facile à entretenir et parfaitement adapté à un premier achat ou à un projet familial.
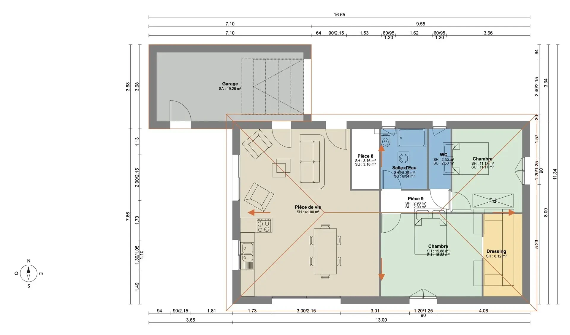
La maison développe une surface habitable de 88 m², pensée pour offrir un intérieur fonctionnel, lumineux et agréable à vivre au quotidien.
Elle se compose de :
Une pièce de vie conviviale avec cuisine ouverte, salon et salle à manger
De belles ouvertures apportant une luminosité naturelle appréciable
3 chambres, offrant un espace nuit bien séparé
Une organisation intérieure optimisée pour le confort et la praticité
Ce projet allie simplicité, confort et qualité de vie, dans un cadre agréable au cœur du Gard.
Projet personnalisable selon vos envies et votre budget.
Étude gratuite et renseignements sur simple demande.
Le terrain, d’une surface de 400 m², est idéal pour un projet de maison confortable, facile à entretenir et parfaitement adapté à un premier achat ou à un projet familial.
La maison développe une surface habitable de 88 m², pensée pour offrir un intérieur fonctionnel, lumineux et agréable à vivre au quotidien.
Elle se compose de :
Une pièce de vie conviviale avec cuisine ouverte, salon et salle à manger
De belles ouvertures apportant une luminosité naturelle appréciable
3 chambres, offrant un espace nuit bien séparé
Une organisation intérieure optimisée pour le confort et la praticité
Ce projet allie simplicité, confort et qualité de vie, dans un cadre agréable au cœur du Gard.
Projet personnalisable selon vos envies et votre budget.
Étude gratuite et renseignements sur simple demande.