Le luxe de l'espace à prix maîtrisé, une architecture à étage résolument moderne
Notre inspiration LUNÉA se distingue par ses lignes contemporaines et son toit à 4 pans.
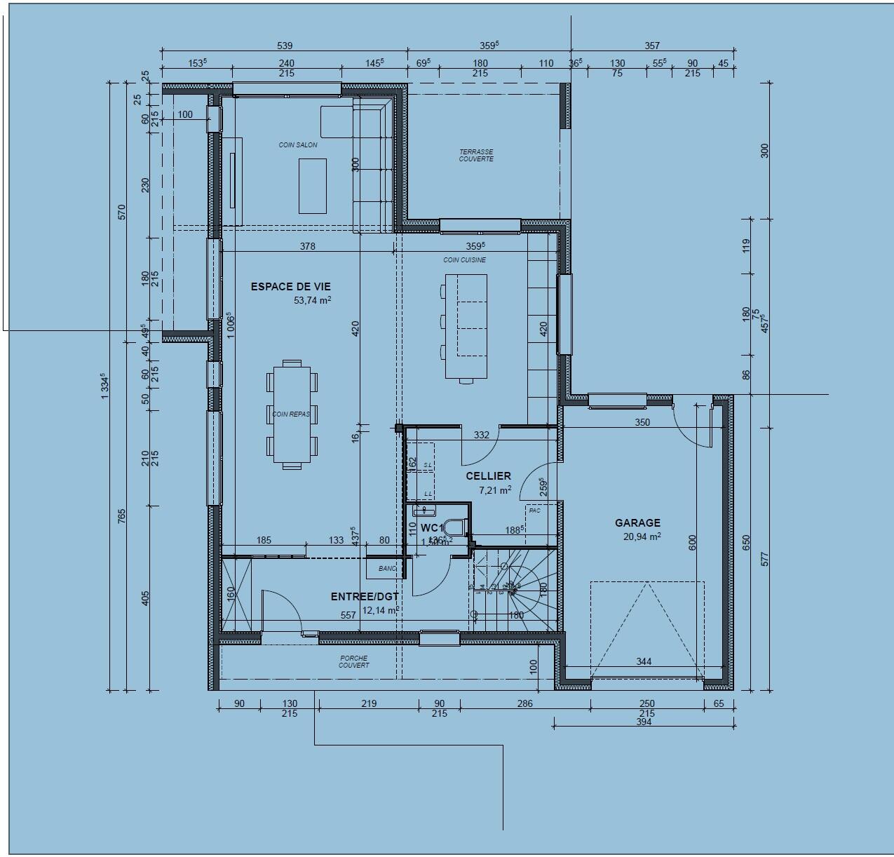
Cette villa à ossature bois propose une surface habitable généreuse de 133 m², pensée pour offrir une séparation parfaite entre les zones de réception et l'espace nuit.
Un rez-de-chaussée dédié à la convivialité
- Vaste espace de vie de 53 m² comprenant un coin salon cosy et une cuisine ouverte avec îlot central, baignés de lumière grâce à de larges ouvertures sur le jardin.
- Confort pratique : Un cellier de 7 m² attenant à la cuisine et un garage de 21 m².
- Accueil soigné : Entrée avec dégagement de 12 m² incluant un espace rangement;
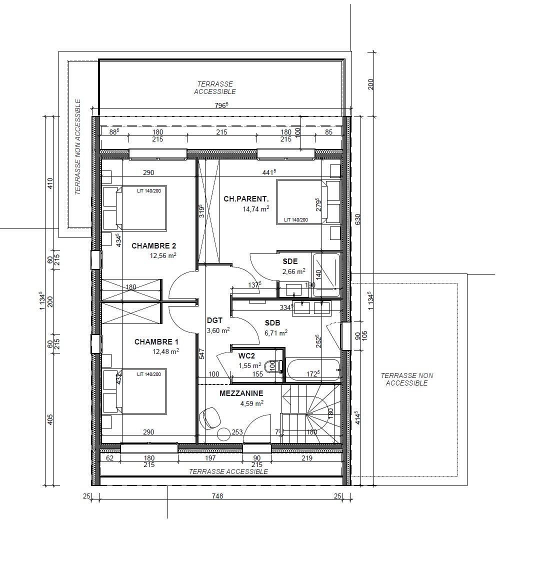
Un étage conçu comme un cocon
- Suite parentale d'exception de 15 m² avec salle d'eau privative.
- Deux chambres supplémentaires confortables de 12 m².
- Espace détente : Une mezzanine de 5 m² idéale pour un bureau ou un coin lecture, ainsi qu'une salle de bains commune de 7 m².
Extérieurs :
- Accès à de vastes terrasses pour profiter de la vue panoramique sur le Quercy.
Le terrain de 1760 m² offre une garantie de tranquillité
Terrain borné avec étude de sol G1 réalisée. Prévoir viabilisation et assainissement non collectif (ANC).
Vivre au Vigan, c’est choisir l’équilibre parfait entre sérénité rurale et proximité des services, à Gourdon.
Faites le choix de la qualité environnementale avec Maisons Naturéa Cahors
Cette villa à ossature bois propose une surface habitable généreuse de 133 m², pensée pour offrir une séparation parfaite entre les zones de réception et l'espace nuit.
Un rez-de-chaussée dédié à la convivialité
- Vaste espace de vie de 53 m² comprenant un coin salon cosy et une cuisine ouverte avec îlot central, baignés de lumière grâce à de larges ouvertures sur le jardin.
- Confort pratique : Un cellier de 7 m² attenant à la cuisine et un garage de 21 m².
- Accueil soigné : Entrée avec dégagement de 12 m² incluant un espace rangement;
Un étage conçu comme un cocon
- Suite parentale d'exception de 15 m² avec salle d'eau privative.
- Deux chambres supplémentaires confortables de 12 m².
- Espace détente : Une mezzanine de 5 m² idéale pour un bureau ou un coin lecture, ainsi qu'une salle de bains commune de 7 m².
Extérieurs :
- Accès à de vastes terrasses pour profiter de la vue panoramique sur le Quercy.
Le terrain de 1760 m² offre une garantie de tranquillité
Terrain borné avec étude de sol G1 réalisée. Prévoir viabilisation et assainissement non collectif (ANC).
Vivre au Vigan, c’est choisir l’équilibre parfait entre sérénité rurale et proximité des services, à Gourdon.
Faites le choix de la qualité environnementale avec Maisons Naturéa Cahors