Idéal primo-accédants, retraités ou investisseurs : un cadre de vie paisible et pratique au centre de Labastide-Murat
Maison Naturéa vous propose cette charmante maison neuve de plain-pied d'une surface habitable de 78m², nichée sur un terrain parfaitement situé à Labastide-Murat. Avec ses 3 chambres, elle offre un cadre de vie fonctionnel et agréable, au calme tout en étant à deux pas des commerces et services essentiels. Une opportunité rare pour ceux qui recherchent la praticité et la sérénité au cœur du Parc Naturel Régional des Causses du Quercy.
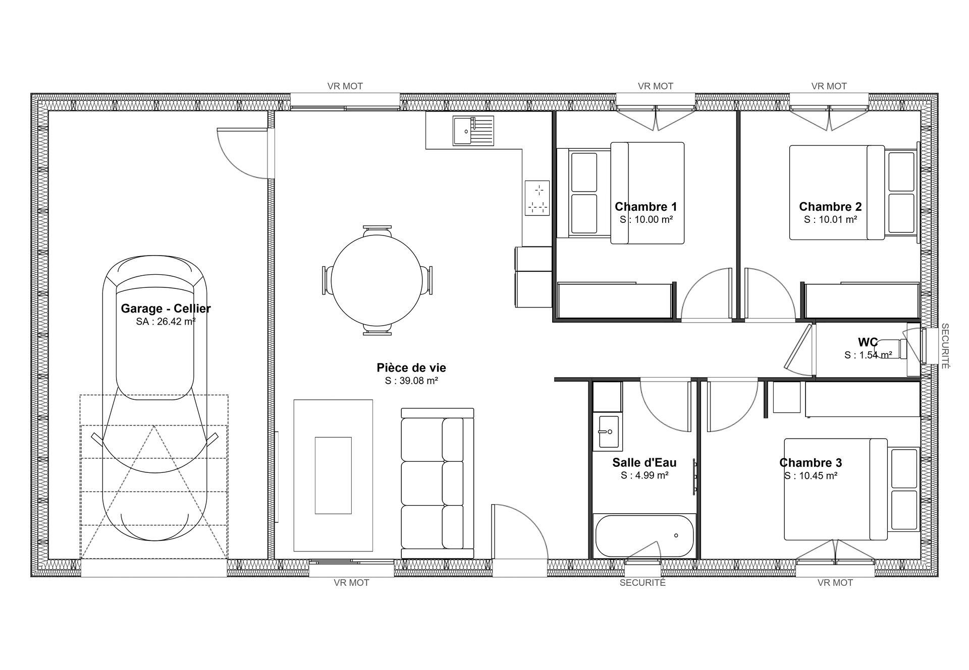
🏠 La maison :
Cette maison moderne et optimisée de 78m² est conçue pour une vie facile et confortable.
Le vaste espace de vie ouvert et traversant intègre salon, salle à manger et cuisine. Vous profiterez d'une cuisine ouverte, conviviale et fonctionnelle.
La large baie vitrée donne sur la terrasse en bois, garantissant une belle luminosité et un accès direct à l'extérieur.
L'espace nuit est confortable avec ses trois chambres pensées pour offrir un espace de repos agréable.
La salle d'eau moderne et fonctionnelle est équipée d'une douche ou baignoire.
Le WC indépendant est séparé pour plus de commodité.
Le garage - cellier avec un accès direct à la maison pour un confort optimal est un espace généreux pour garer un véhicule mais aussi pour servir de buanderie ou de zone de stockage.
🌟 Atout du projet
Construction neuve : Profitez des dernières normes de construction, d'une excellente isolation et d'une performance énergétique optimisée. Zéro travaux à prévoir !
Plain-pied : Idéal pour un confort de vie à tout âge, particulièrement apprécié des seniors.
Fonctionnalité : Une distribution intelligente des espaces optimisant chaque mètre carré.
Garage Intégré : Un atout majeur pour le stationnement et le rangement.
Luminosité : Les grandes ouvertures garantissent un intérieur agréable et ensoleillé.
Localisation Privilégiée : Au cœur de Labastide-Murat, vous bénéficierez de la proximité immédiate des commerces (boulangerie, épicerie...), des services (médecin, pharmacie...) et des écoles, tout en profitant du calme de la campagne lotoise.
🧑🤝🧑Pour qui ?
Primo-Accédants : Une opportunité d'accéder à la propriété avec une maison neuve et fonctionnelle.
Retraités : Le plain-pied, la proximité des commodités et le cadre paisible sont des atouts majeurs.
Jeunes Couples / Petites Familles : Trois chambres dans un format compact et pratique.
Investisseurs Locatifs : Forte demande pour des logements récents et bien situés dans la région, assurant un bon rendement locatif.
📍Localisation
Labastide-Murat, Lot (46240) est une commune dynamique du Parc Naturel Régional des Causses du Quercy, offrant un cadre de vie authentique et préservé. La cille est idéalement située sur l'axe entre Cahors et Brive, avec un accès rapide aux sites touristiques majeurs (Rocamadour, Gouffre de Padirac, Saint-Cirq-Lapopie...). Le cœur du village offre tous les commerces de première nécessité et services de proximité.
Ne manquez pas l'occasion d'acquérir cette maison neuve, prête à vivre, dans un environnement recherché. Une opportunité idéale pour combiner vie pratique et sérénité.
Contactez-nous dès aujourd'hui pour organiser une visite et découvrir votre futur chez-vous à Labastide-Murat !
🏠 La maison :
Cette maison moderne et optimisée de 78m² est conçue pour une vie facile et confortable.
Le vaste espace de vie ouvert et traversant intègre salon, salle à manger et cuisine. Vous profiterez d'une cuisine ouverte, conviviale et fonctionnelle.
La large baie vitrée donne sur la terrasse en bois, garantissant une belle luminosité et un accès direct à l'extérieur.
L'espace nuit est confortable avec ses trois chambres pensées pour offrir un espace de repos agréable.
La salle d'eau moderne et fonctionnelle est équipée d'une douche ou baignoire.
Le WC indépendant est séparé pour plus de commodité.
Le garage - cellier avec un accès direct à la maison pour un confort optimal est un espace généreux pour garer un véhicule mais aussi pour servir de buanderie ou de zone de stockage.
🌟 Atout du projet
Construction neuve : Profitez des dernières normes de construction, d'une excellente isolation et d'une performance énergétique optimisée. Zéro travaux à prévoir !
Plain-pied : Idéal pour un confort de vie à tout âge, particulièrement apprécié des seniors.
Fonctionnalité : Une distribution intelligente des espaces optimisant chaque mètre carré.
Garage Intégré : Un atout majeur pour le stationnement et le rangement.
Luminosité : Les grandes ouvertures garantissent un intérieur agréable et ensoleillé.
Localisation Privilégiée : Au cœur de Labastide-Murat, vous bénéficierez de la proximité immédiate des commerces (boulangerie, épicerie...), des services (médecin, pharmacie...) et des écoles, tout en profitant du calme de la campagne lotoise.
🧑🤝🧑Pour qui ?
Primo-Accédants : Une opportunité d'accéder à la propriété avec une maison neuve et fonctionnelle.
Retraités : Le plain-pied, la proximité des commodités et le cadre paisible sont des atouts majeurs.
Jeunes Couples / Petites Familles : Trois chambres dans un format compact et pratique.
Investisseurs Locatifs : Forte demande pour des logements récents et bien situés dans la région, assurant un bon rendement locatif.
📍Localisation
Labastide-Murat, Lot (46240) est une commune dynamique du Parc Naturel Régional des Causses du Quercy, offrant un cadre de vie authentique et préservé. La cille est idéalement située sur l'axe entre Cahors et Brive, avec un accès rapide aux sites touristiques majeurs (Rocamadour, Gouffre de Padirac, Saint-Cirq-Lapopie...). Le cœur du village offre tous les commerces de première nécessité et services de proximité.
Ne manquez pas l'occasion d'acquérir cette maison neuve, prête à vivre, dans un environnement recherché. Une opportunité idéale pour combiner vie pratique et sérénité.
Contactez-nous dès aujourd'hui pour organiser une visite et découvrir votre futur chez-vous à Labastide-Murat !