L'excellence de l'habitat sain à Figeac : une maison qui respire
Situé dans un secteur calme et recherché de Figeac, ce projet de construction signé Maisons Naturéa Cahors est une invitation à conjuguer sérénité naturelle et proximité urbaine. Profitez d'un terrain sélectionné pour son exposition optimale et son cadre de vie privilégié.
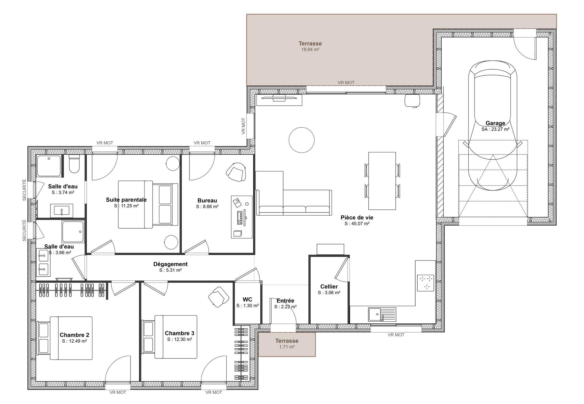
Nos maisons à ossature bois se distinguent par leur élégance et leur capacité à offrir un climat intérieur sain. Cette inspiration, personnalisable selon vos envies, mise sur de larges ouvertures pour laisser entrer la lumière et créer une connexion fluide avec votre futur jardin.
Les points forts de l'offre :
- Performance thermique de pointe : grâce à l'utilisation de matériaux biosourcés et à notre savoir-faire bois, votre maison dépasse les exigences de la RE2020, vous assurant des factures d'énergie réduites.
- Confort de vie été comme hiver : une isolation naturelle performante qui régule l'humidité et la température pour un bien-être immédiat.
- Aménagement sur-mesure : une pièce de vie spacieuse et ouverte, des chambres confortables et une salle d'eau moderne, le tout adaptable à votre style de vie.
- Emplacement de choix : à quelques minutes du centre historique de Figeac, du musée Champollion, de ses commerces, écoles et services, tout en bénéficiant du calme d'un quartier résidentiel.
En tant que constructeur de proximité, nous vous accompagnons de la conception des plans à la remise des clés. Ce projet est sécurisé par le contrat CCMI, incluant la garantie de livraison à prix et délais convenus ainsi que l'assurance dommages-ouvrage.
Faites le choix d'une maison qui prend soin de vous et de la planète. Contactez l'agence de Maisons Naturéa Cahors pour étudier ce terrain à Figeac.
Nos maisons à ossature bois se distinguent par leur élégance et leur capacité à offrir un climat intérieur sain. Cette inspiration, personnalisable selon vos envies, mise sur de larges ouvertures pour laisser entrer la lumière et créer une connexion fluide avec votre futur jardin.
Les points forts de l'offre :
- Performance thermique de pointe : grâce à l'utilisation de matériaux biosourcés et à notre savoir-faire bois, votre maison dépasse les exigences de la RE2020, vous assurant des factures d'énergie réduites.
- Confort de vie été comme hiver : une isolation naturelle performante qui régule l'humidité et la température pour un bien-être immédiat.
- Aménagement sur-mesure : une pièce de vie spacieuse et ouverte, des chambres confortables et une salle d'eau moderne, le tout adaptable à votre style de vie.
- Emplacement de choix : à quelques minutes du centre historique de Figeac, du musée Champollion, de ses commerces, écoles et services, tout en bénéficiant du calme d'un quartier résidentiel.
En tant que constructeur de proximité, nous vous accompagnons de la conception des plans à la remise des clés. Ce projet est sécurisé par le contrat CCMI, incluant la garantie de livraison à prix et délais convenus ainsi que l'assurance dommages-ouvrage.
Faites le choix d'une maison qui prend soin de vous et de la planète. Contactez l'agence de Maisons Naturéa Cahors pour étudier ce terrain à Figeac.