Terrain d’exception de 6000m² constructible – Proximité immédiate de Cahors 🌿
🌿 À VENDRE – Terrain d’exception de 6000m² constructible – Proximité immédiate de Cahors 🌿
Vous rêvez de faire construire votre maison dans un cadre naturel, paisible, sans vous éloigner de la ville ? Ce terrain rare est fait pour vous.
🌟 Les atouts du terrain :
✔️ Superficie de 6000 m²
✔️ Vue dégagée imprenable sur la campagne lotoise
✔️ Environnement calme, sans vis-à-vis
✔️ À seulement quelques minutes du centre de Cahors
✔️ Un équilibre parfait entre nature et commodités
La campagne aux portes de la ville, un cadre idyllique pour bâtir la maison de vos rêves.
🏠 Le projet :
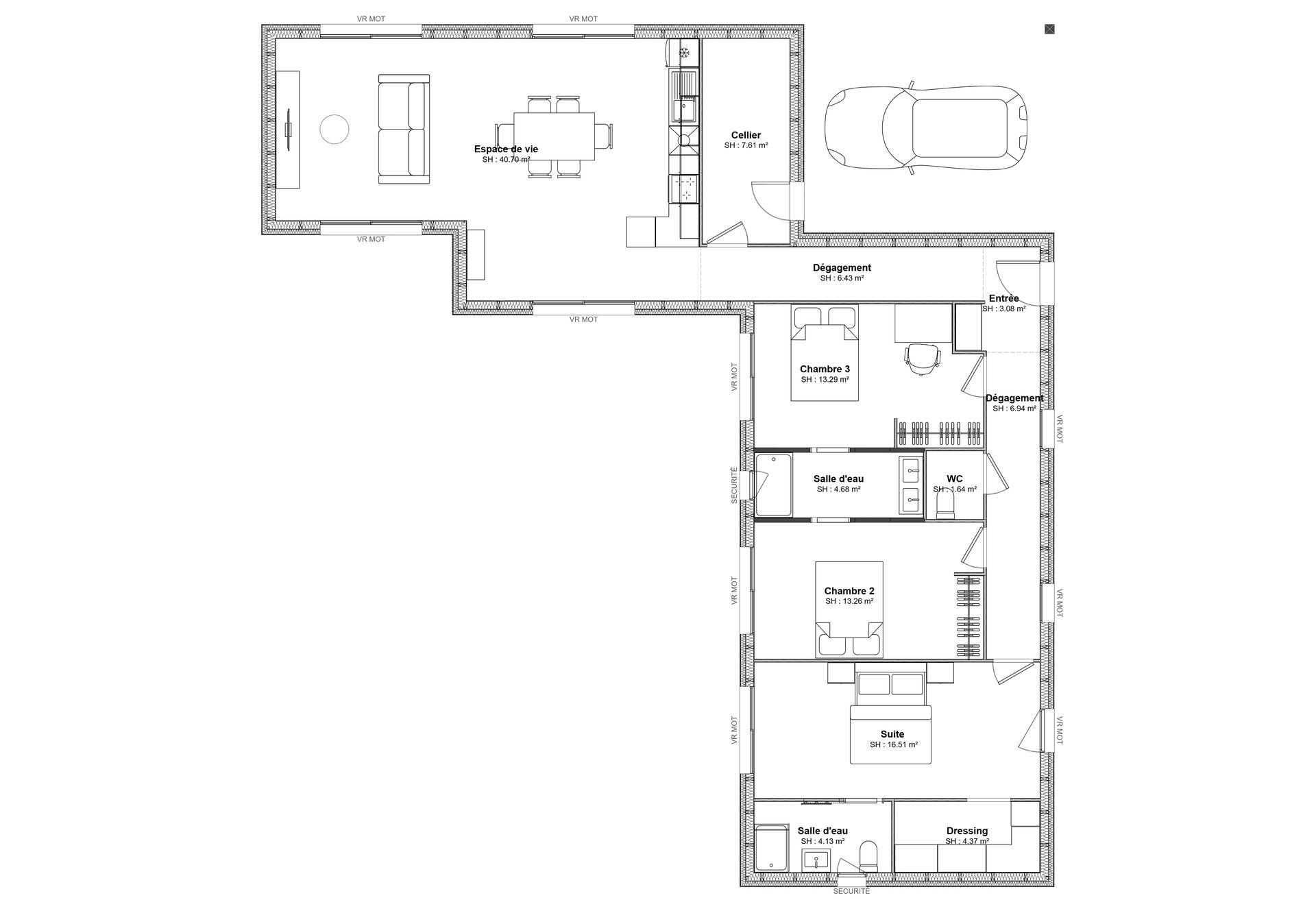
Maison moderne de 122 m², au style et design bien pensé. Toit plat, enduit crépis et quelques touches de bardage bois pour un effet moderne et chaleureux.
Maison élégante aux finitions soignées.
Caractéristiques principales :
✔️ Grand espace de vie lumineux avec cuisine ouverte, parfait pour recevoir et partager
✔️ 3 chambres dont une suite parentale spacieuse avec salle d’eau privative, située à l’écart des autres couchages pour plus de tranquillité
✔️ Salle de bain familiale, WC séparés
✔️ Rangements intégrés, prestations de qualité, matériaux modernes
Un plan bien pensé, où chaque mètre carré est exploité pour allier confort, fonctionnalité et esthétisme.
En tant que constructeur de maisons individuelles, nous vous proposons un accompagnement sur-mesure pour imaginer et réaliser votre projet de vie, de la conception à la remise des clés. Ensemble, donnons vie à un lieu qui vous ressemble.
📞 05 65 31 12 87
Vous rêvez de faire construire votre maison dans un cadre naturel, paisible, sans vous éloigner de la ville ? Ce terrain rare est fait pour vous.
🌟 Les atouts du terrain :
✔️ Superficie de 6000 m²
✔️ Vue dégagée imprenable sur la campagne lotoise
✔️ Environnement calme, sans vis-à-vis
✔️ À seulement quelques minutes du centre de Cahors
✔️ Un équilibre parfait entre nature et commodités
La campagne aux portes de la ville, un cadre idyllique pour bâtir la maison de vos rêves.
🏠 Le projet :
Maison moderne de 122 m², au style et design bien pensé. Toit plat, enduit crépis et quelques touches de bardage bois pour un effet moderne et chaleureux.
Maison élégante aux finitions soignées.
Caractéristiques principales :
✔️ Grand espace de vie lumineux avec cuisine ouverte, parfait pour recevoir et partager
✔️ 3 chambres dont une suite parentale spacieuse avec salle d’eau privative, située à l’écart des autres couchages pour plus de tranquillité
✔️ Salle de bain familiale, WC séparés
✔️ Rangements intégrés, prestations de qualité, matériaux modernes
Un plan bien pensé, où chaque mètre carré est exploité pour allier confort, fonctionnalité et esthétisme.
En tant que constructeur de maisons individuelles, nous vous proposons un accompagnement sur-mesure pour imaginer et réaliser votre projet de vie, de la conception à la remise des clés. Ensemble, donnons vie à un lieu qui vous ressemble.
📞 05 65 31 12 87