Votre Maison de Rêve de 143m² : Confort et Fonctionnalité
Découvrez votre future maison idéale à Saint-Paul-Flaugnac, en plein cœur du Lot ! Nous vous proposons une maison neuve et spacieuse de 143m², parfaitement conçue pour la vie de famille et implantée sur un grand terrain de 2000m². Un cadre de vie privilégié vous attend !
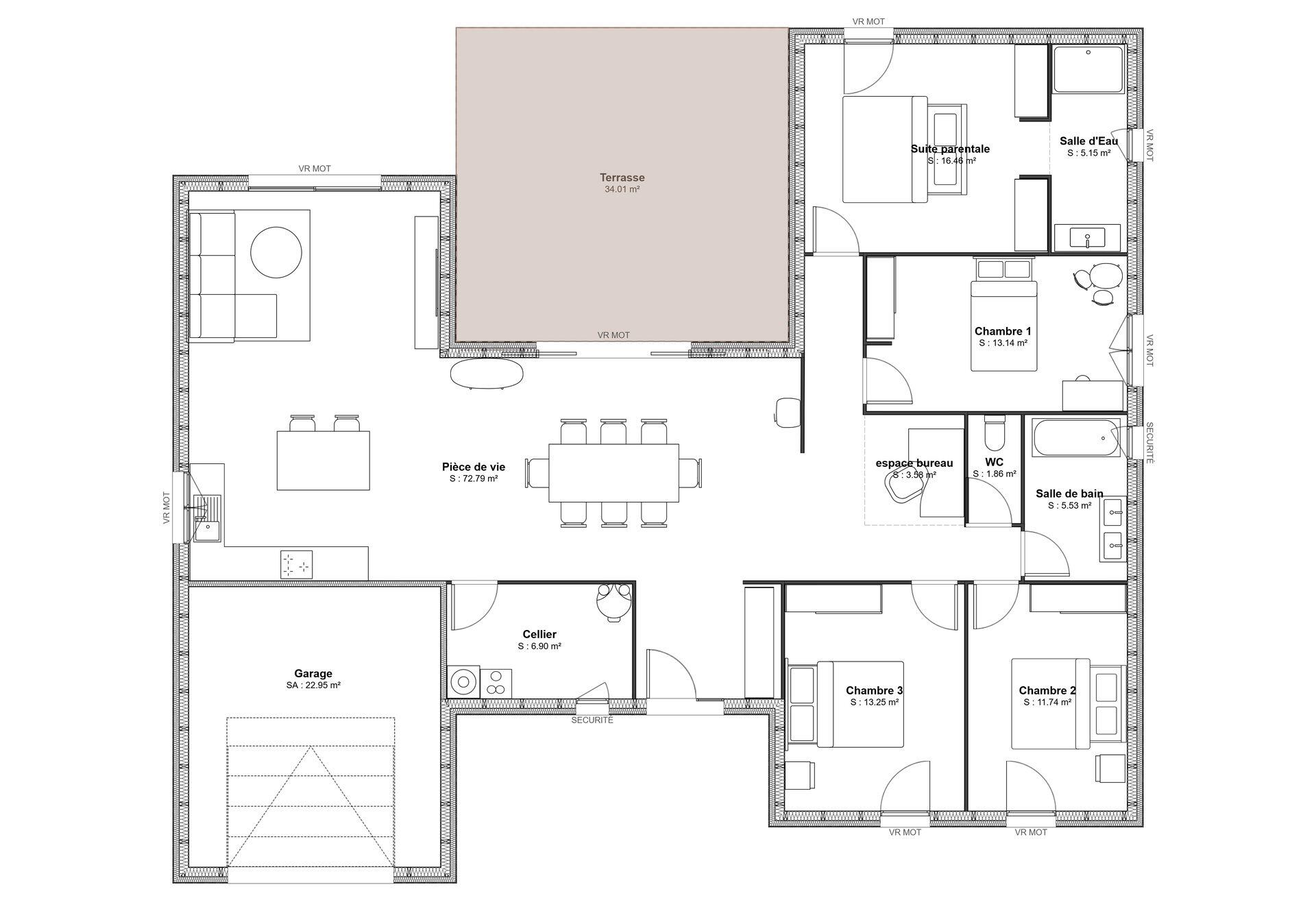
Cette maison moderne et lumineuse a été pensée pour s'adapter à tous vos besoins :
Vaste Pièce de Vie : Un espace ouvert et convivial regroupant salon, salle à manger et cuisine, idéal pour les moments en famille ou entre amis. Lumineux et ouvert sur l'extérieur pour profiter pleinement du jardin.
Suite Parentale Intimiste : Profitez d'un véritable havre de paix avec une grande chambre parentale et sa salle d'eau privative, pour un confort absolu.
Trois Chambres Supplémentaires : Idéales pour les enfants, les invités ou pour créer des espaces personnalisés (bureau, salle de jeux...).
Espace Bureau Dégagé : Un coin dédié au télétravail ou aux études, pour travailler au calme à la maison.
Deux Salles de Bain et Deux WC : Une salle d'eau privative pour la suite parentale et une salle de bain indépendante (5.39m²) avec WC séparé (1.80m²) pour un maximum de commodité.
Cellier Pratique : Un espace de rangement supplémentaire essentiel.
Grand Garage : Pour abriter votre véhicule et stocker vos affaires, avec un accès direct à la maison.
Un vaste jardin pour profiter des beaux jours, jeux d'enfants, potager...
Une grande terrasse directement accessible depuis la pièce de vie, parfaite pour vos repas en extérieur et vos moments de détente.
Un potentiel certain pour l'installation d'une piscine, comme suggéré sur nos visuels, transformant votre jardin en un véritable oasis de fraîcheur !
Saint-Paul Flaugnac : Un Cadre de Vie Idéal dans le Lot (Occitanie)
Située stratégiquement, la commune de Saint-Paul Flaugnac offre la tranquillité de la campagne lotoise tout en étant à proximité des axes routiers et des services. Profitez du charme de l'Occitanie et de la douceur de vivre d'un village authentique.
Votre Projet Clés en Main :
En tant que constructeur expérimenté, nous vous garantissons une construction de qualité, respectueuse des dernières normes énergétiques (RE2020), avec toutes les garanties nécessaires. Nous vous accompagnons à chaque étape, de la personnalisation de votre projet à la remise des clés.
Ne manquez pas cette opportunité unique ! Une maison de cette superficie sur un tel terrain est rare.
Contactez nous dès aujourd'hui pour plus d'informations, découvrir le terrain et discuter de votre projet de vie à Saint-Paul Flaugnac !
Cette maison moderne et lumineuse a été pensée pour s'adapter à tous vos besoins :
Vaste Pièce de Vie : Un espace ouvert et convivial regroupant salon, salle à manger et cuisine, idéal pour les moments en famille ou entre amis. Lumineux et ouvert sur l'extérieur pour profiter pleinement du jardin.
Suite Parentale Intimiste : Profitez d'un véritable havre de paix avec une grande chambre parentale et sa salle d'eau privative, pour un confort absolu.
Trois Chambres Supplémentaires : Idéales pour les enfants, les invités ou pour créer des espaces personnalisés (bureau, salle de jeux...).
Espace Bureau Dégagé : Un coin dédié au télétravail ou aux études, pour travailler au calme à la maison.
Deux Salles de Bain et Deux WC : Une salle d'eau privative pour la suite parentale et une salle de bain indépendante (5.39m²) avec WC séparé (1.80m²) pour un maximum de commodité.
Cellier Pratique : Un espace de rangement supplémentaire essentiel.
Grand Garage : Pour abriter votre véhicule et stocker vos affaires, avec un accès direct à la maison.
Un vaste jardin pour profiter des beaux jours, jeux d'enfants, potager...
Une grande terrasse directement accessible depuis la pièce de vie, parfaite pour vos repas en extérieur et vos moments de détente.
Un potentiel certain pour l'installation d'une piscine, comme suggéré sur nos visuels, transformant votre jardin en un véritable oasis de fraîcheur !
Saint-Paul Flaugnac : Un Cadre de Vie Idéal dans le Lot (Occitanie)
Située stratégiquement, la commune de Saint-Paul Flaugnac offre la tranquillité de la campagne lotoise tout en étant à proximité des axes routiers et des services. Profitez du charme de l'Occitanie et de la douceur de vivre d'un village authentique.
Votre Projet Clés en Main :
En tant que constructeur expérimenté, nous vous garantissons une construction de qualité, respectueuse des dernières normes énergétiques (RE2020), avec toutes les garanties nécessaires. Nous vous accompagnons à chaque étape, de la personnalisation de votre projet à la remise des clés.
Ne manquez pas cette opportunité unique ! Une maison de cette superficie sur un tel terrain est rare.
Contactez nous dès aujourd'hui pour plus d'informations, découvrir le terrain et discuter de votre projet de vie à Saint-Paul Flaugnac !