Située à moins de 5 minutes du centre d’Aix-les-Bains, tout en étant dans un quartier résidentiel calme et très recherché, cette situation offre un cadre de vie exceptionnel, avec une splendide vue sur les montagnes.
Construisons ensemble votre villa individuelle en ossature bois sur mesure avec Maisons NATUREA.
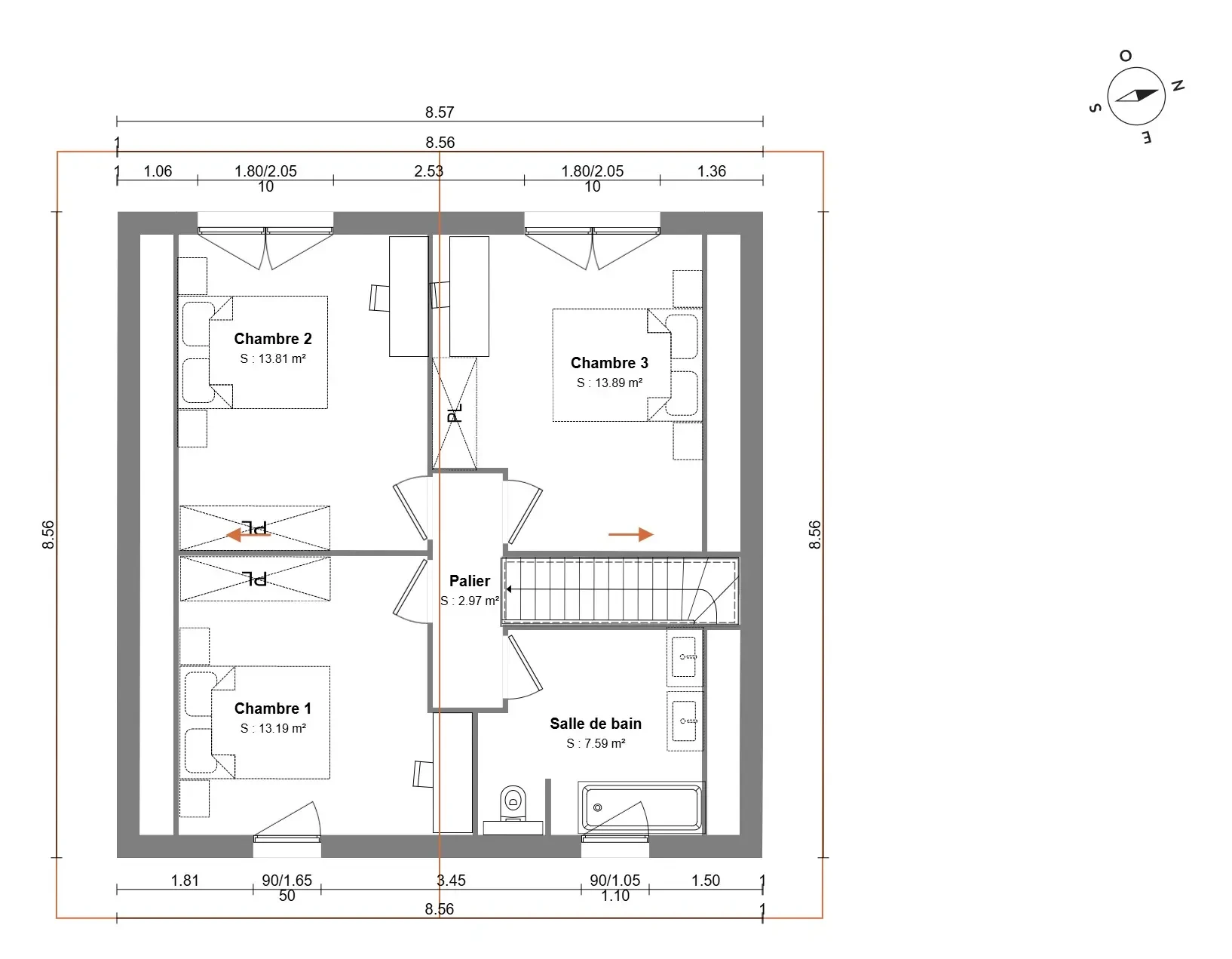
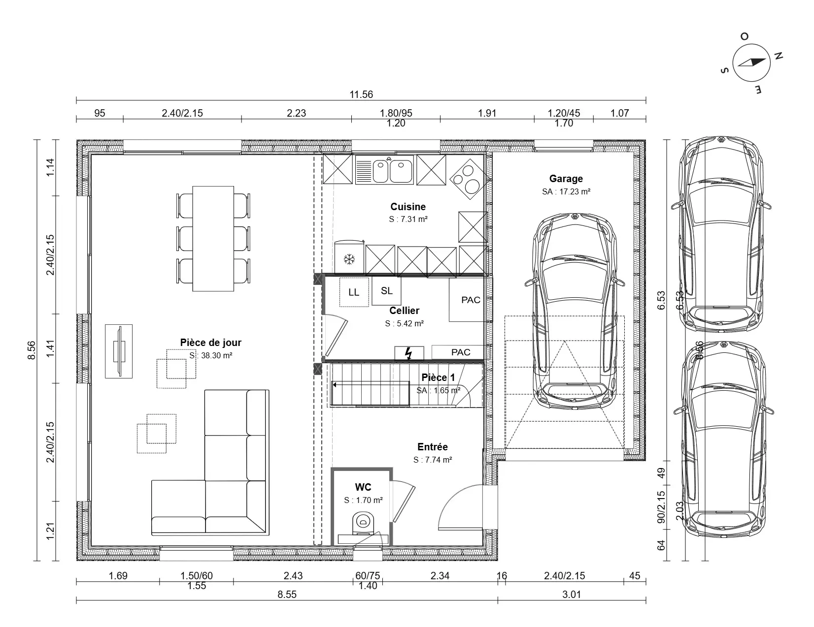
Cette opportunité vous offre une surface habitable de 110 m2 avec un espace de vie de plus de 50 m2 au rez et 3 chambres spacieuses à l'étage.
Agrémenté d'un garage accolé de 17 m2 avec un accès direct dans l'habitation.
Afin d'être au plus proche de la nature, les maisons environnementales NATUREA sont construites avec un matériau écologique, le bois, provenant de forêts gérées durablement. Ce matériau apporte de nombreux avantages et un confort de vie
supérieur à une maison classique.
Grâce aux propriétés naturelles de votre maison ossature bois, vous apprécierez l'agrément d'une maison saine,
chaleureuse, reposante qui vous apportera une sensation de bien-être.
La souplesse architecturale qu'apporte le bois permet avec facilité de réaliser des agrandissements et des modifications
rendant nos maisons évolutives et personnalisables.
Vous bénéficierez de performances d'isolation thermique et acoustique exceptionnelles. Toutes les vertus de ce matériau
noble vous garantissent un confort optimal
Cette opportunité vous offre une surface habitable de 110 m2 avec un espace de vie de plus de 50 m2 au rez et 3 chambres spacieuses à l'étage.
Agrémenté d'un garage accolé de 17 m2 avec un accès direct dans l'habitation.
Afin d'être au plus proche de la nature, les maisons environnementales NATUREA sont construites avec un matériau écologique, le bois, provenant de forêts gérées durablement. Ce matériau apporte de nombreux avantages et un confort de vie
supérieur à une maison classique.
Grâce aux propriétés naturelles de votre maison ossature bois, vous apprécierez l'agrément d'une maison saine,
chaleureuse, reposante qui vous apportera une sensation de bien-être.
La souplesse architecturale qu'apporte le bois permet avec facilité de réaliser des agrandissements et des modifications
rendant nos maisons évolutives et personnalisables.
Vous bénéficierez de performances d'isolation thermique et acoustique exceptionnelles. Toutes les vertus de ce matériau
noble vous garantissent un confort optimal