Maison contemporaine située au Vigan
Découvrez cette magnifique maison implantée sur un terrain boisée, idéalement située au Vigan, offrant un cadre de vie privilégié pour les amoureux de la nature et de la tranquillité.
Ce terrain représente une opportunité rare d'acquérir un espace où calme et verdure sont les maîtres mots, tout en bénéficiant de la proximité des commodités du Vigan.
Caractéristiques de la maison :
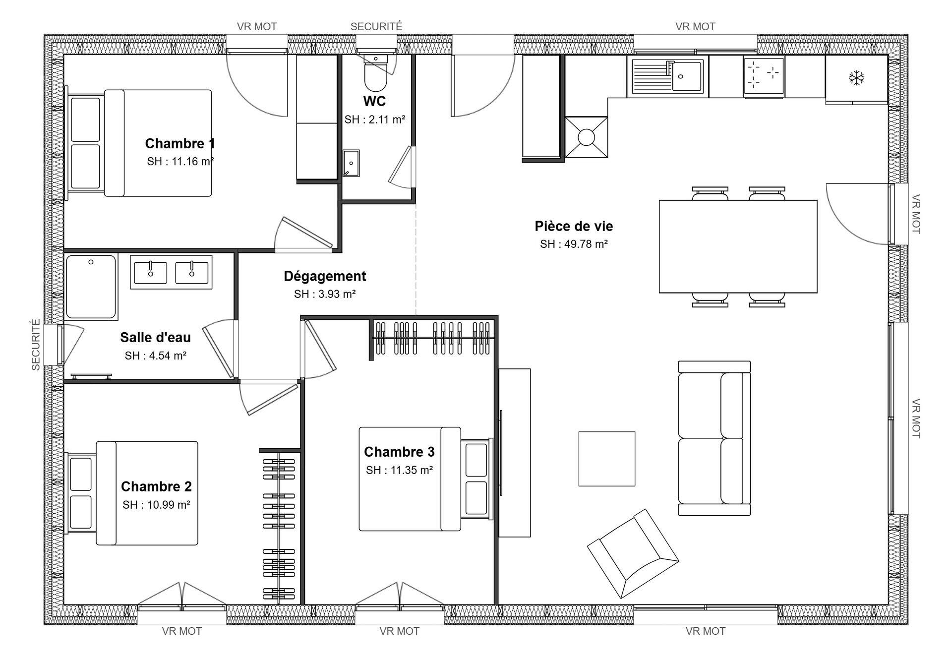
✔️Pièce de vie spacieuse : Un grand séjour ouvert avec cuisine équipée, baigné de lumière grâce à ses grandes ouvertures donnant sur la terrasse. Un espace convivial et facile à vivre.
✔️Trois chambres lumineuses offrant chacune un confort optimal.
✔️Salle d'eau moderne et fonctionnelle.
✔️WC séparés pour plus de commodité.
✔️Dégagement optimisé facilitant la circulation entre les espaces.
Extérieurs et atouts supplémentaires :
✔️Terrain de 2 700m² : Une surface idéale pour un jardin facile d'entretien, permettant de profiter de l'extérieur sans contraintes.
✔️Architecture moderne et fonctionnelle : Une construction récente aux normes actuelles, garantissant confort et faibles consommations d'énergie.
Cette maison est une opportunité idéale pour :
✔️Retraités : Profitez d'une maison de plain-pied sans entretien lourd, avec toutes les commodités à portée de main.
✔️Primo-accédants : Une première acquisition sans travaux, avec un emplacement de choix.
✔️Investissement locatif : Forte demande pour ce type de biens en centre-ville, assurant une excellente rentabilité.
Ne manquez pas cette occasion unique d'acquérir une maison neuve et fonctionnelle dans un secteur très recherché de Gourdon.
📧Contactez nous dès aujourd'hui pour plus d'informations ou pour organiser une visite.
Ce terrain représente une opportunité rare d'acquérir un espace où calme et verdure sont les maîtres mots, tout en bénéficiant de la proximité des commodités du Vigan.
Caractéristiques de la maison :
✔️Pièce de vie spacieuse : Un grand séjour ouvert avec cuisine équipée, baigné de lumière grâce à ses grandes ouvertures donnant sur la terrasse. Un espace convivial et facile à vivre.
✔️Trois chambres lumineuses offrant chacune un confort optimal.
✔️Salle d'eau moderne et fonctionnelle.
✔️WC séparés pour plus de commodité.
✔️Dégagement optimisé facilitant la circulation entre les espaces.
Extérieurs et atouts supplémentaires :
✔️Terrain de 2 700m² : Une surface idéale pour un jardin facile d'entretien, permettant de profiter de l'extérieur sans contraintes.
✔️Architecture moderne et fonctionnelle : Une construction récente aux normes actuelles, garantissant confort et faibles consommations d'énergie.
Cette maison est une opportunité idéale pour :
✔️Retraités : Profitez d'une maison de plain-pied sans entretien lourd, avec toutes les commodités à portée de main.
✔️Primo-accédants : Une première acquisition sans travaux, avec un emplacement de choix.
✔️Investissement locatif : Forte demande pour ce type de biens en centre-ville, assurant une excellente rentabilité.
Ne manquez pas cette occasion unique d'acquérir une maison neuve et fonctionnelle dans un secteur très recherché de Gourdon.
📧Contactez nous dès aujourd'hui pour plus d'informations ou pour organiser une visite.