Votre future maison : Confort et fonctionnalité sur 88 m²
Découvrez notre nouvelle offre exclusive "Maison + Terrain" à Septfonds, au cœur du Tarn-et-Garonne (82). Idéalement situé, ce vaste terrain de 2000 m² vous offre un cadre de vie exceptionnel pour votre projet de construction, alliant tranquillité et espace.
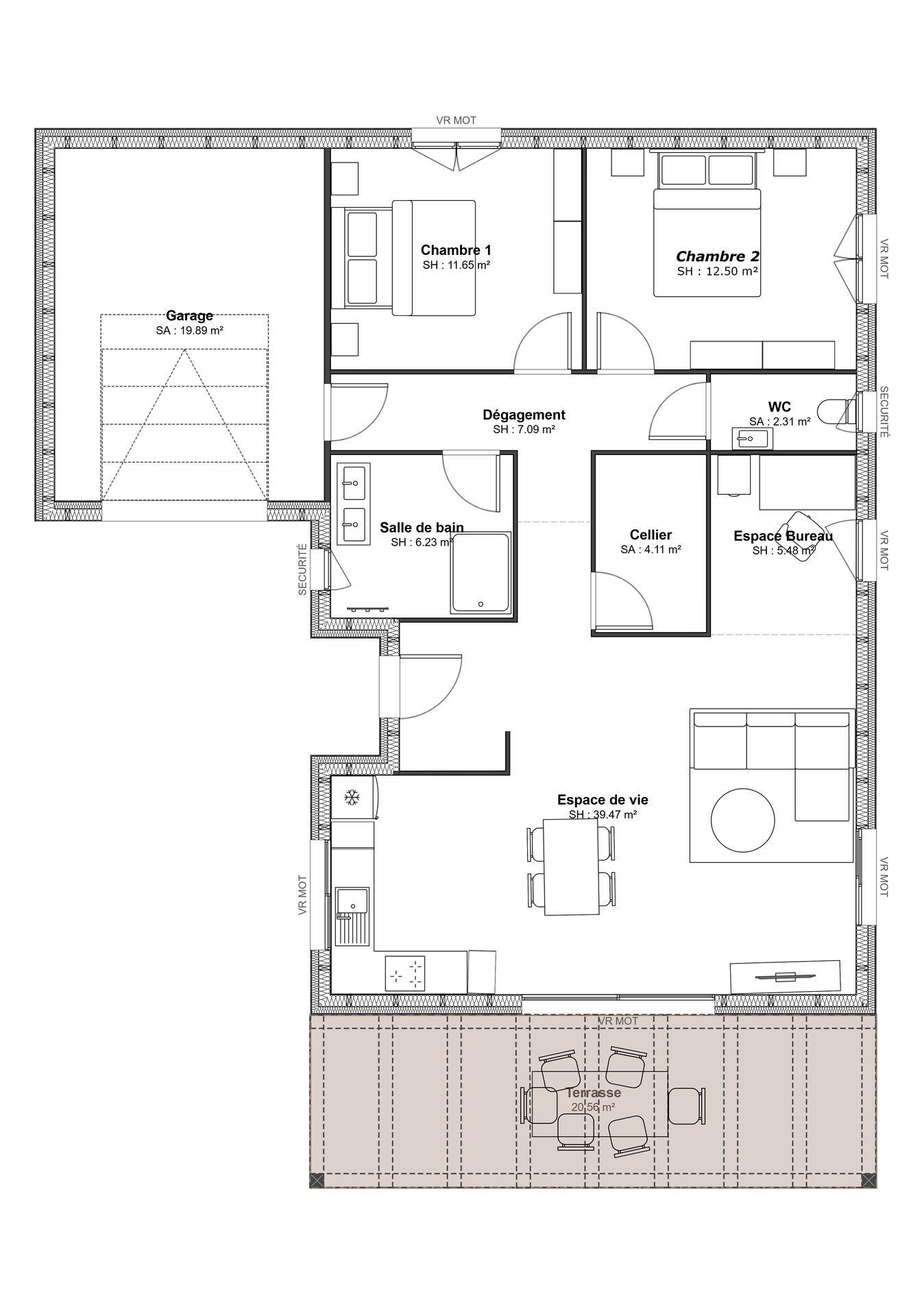
Nous vous proposons un modèle de plain-pied optimisé de 88 m² habitables, parfait pour un jeune couple, une petite famille ou des personnes souhaitant un habitat facile à vivre.
🏠Caractéristiques de votre future maison :
• 2 chambres : Des espaces nuit confortables, l'une de 11.66 m² et l'autre de 12.35 m², avec de la place pour des rangements.
• Espace de vie lumineux : Une pièce de vie de 30.47 m² comprenant un salon/séjour et une cuisine ouverte, conviviale et baignée de lumière naturelle.
• Bureau indépendant : Un espace dédié de 8.46 m², idéal pour le télétravail ou comme chambre d'appoint.
• Salle de bain et WC séparé : Des commodités bien agencées pour un quotidien pratique.
• Cellier : Un espace de 4.11 m² très utile pour le rangement et la buanderie.
• Garage de 15.85 m², directement accessible depuis la maison, parfait pour stationner un véhicule et stocker du matériel.
• Architecture moderne : Un design contemporain avec des toits en tuiles, un enduit clair et un bardage bois élégant sur la façade de la terrasse.
🌳Le terrain à Septfonds (82) : Espace et potentiel
Le terrain de 2000 m² vous offre une grande liberté pour l'aménagement extérieur : créez un vaste jardin, installez une piscine, ou profitez simplement d'un grand espace privatif. Septfonds est une commune prisée pour son cadre de vie calme et rural, tout en étant bien desservie et à proximité des commodités locales et des axes routiers majeurs.
🤝Pourquoi choisir ce projet ?
• Surface habitable optimisée : Un agencement intelligent pour un maximum de confort dans 88 m².
• Grand terrain : Un espace extérieur rare de 2000 m², offrant de multiples possibilités.
• Construction de qualité : Nous nous engageons sur le respect des dernières normes de construction (RE2020), vous assurant une maison économe en énergie, confortable et durable.
• Localisation stratégique : Profitez de la quiétude de Septfonds sans sacrifier l'accès aux services.
• Prestations soignées : Le modèle propose des finitions modernes et des équipements pensés pour votre confort.
N'attendez plus pour concrétiser votre projet immobilier à Septfonds !
Contactez-nous dès maintenant pour obtenir plus de détails et démarrer la construction de votre future maison.
Nous vous proposons un modèle de plain-pied optimisé de 88 m² habitables, parfait pour un jeune couple, une petite famille ou des personnes souhaitant un habitat facile à vivre.
🏠Caractéristiques de votre future maison :
• 2 chambres : Des espaces nuit confortables, l'une de 11.66 m² et l'autre de 12.35 m², avec de la place pour des rangements.
• Espace de vie lumineux : Une pièce de vie de 30.47 m² comprenant un salon/séjour et une cuisine ouverte, conviviale et baignée de lumière naturelle.
• Bureau indépendant : Un espace dédié de 8.46 m², idéal pour le télétravail ou comme chambre d'appoint.
• Salle de bain et WC séparé : Des commodités bien agencées pour un quotidien pratique.
• Cellier : Un espace de 4.11 m² très utile pour le rangement et la buanderie.
• Garage de 15.85 m², directement accessible depuis la maison, parfait pour stationner un véhicule et stocker du matériel.
• Architecture moderne : Un design contemporain avec des toits en tuiles, un enduit clair et un bardage bois élégant sur la façade de la terrasse.
🌳Le terrain à Septfonds (82) : Espace et potentiel
Le terrain de 2000 m² vous offre une grande liberté pour l'aménagement extérieur : créez un vaste jardin, installez une piscine, ou profitez simplement d'un grand espace privatif. Septfonds est une commune prisée pour son cadre de vie calme et rural, tout en étant bien desservie et à proximité des commodités locales et des axes routiers majeurs.
🤝Pourquoi choisir ce projet ?
• Surface habitable optimisée : Un agencement intelligent pour un maximum de confort dans 88 m².
• Grand terrain : Un espace extérieur rare de 2000 m², offrant de multiples possibilités.
• Construction de qualité : Nous nous engageons sur le respect des dernières normes de construction (RE2020), vous assurant une maison économe en énergie, confortable et durable.
• Localisation stratégique : Profitez de la quiétude de Septfonds sans sacrifier l'accès aux services.
• Prestations soignées : Le modèle propose des finitions modernes et des équipements pensés pour votre confort.
N'attendez plus pour concrétiser votre projet immobilier à Septfonds !
Contactez-nous dès maintenant pour obtenir plus de détails et démarrer la construction de votre future maison.